
INCH-POUND
MIL-DTL-83528/4F
11 January 2013
SUPERSEDING
MIL-DTL-83528/4E
15 November 2001
DETAIL SPECIFICATION SHEET
GASKETING MATERIAL, CONDUCTIVE, SHIELDING GASKET, ELECTRONIC,
EMI/RFI, CONNECTOR FLANGE MOUNT
This specification is approved for use by all Departments
and Agencies of the Department of Defense.
The requirements for acquiring the relay described herein shall
consist of this specification and the latest issue of MIL-DTL-83528.
NOTES:
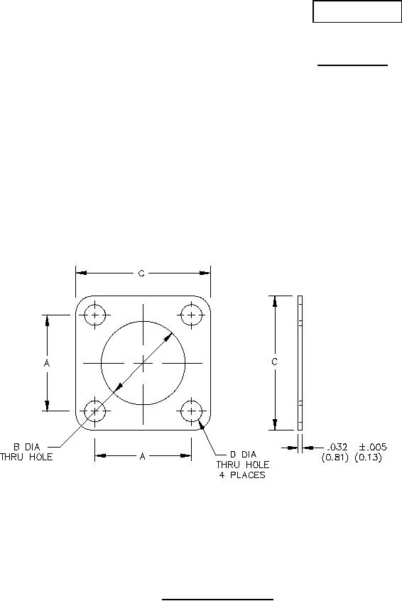
Dimensions are in inches; metric equivalents are given in parenthesis and are for general information only.
FIGURE 1. EMI/RFI connector gasket.
AMSC N/A
FSC 5999