
INCH-POUND
MIL-DTL-83528/8E
19 November 2013
SUPERSEDING
MIL-DTL-83528/8D
15 November 2001
DETAIL SPECIFICATION SHEET
GASKETING MATERIAL, CONDUCTIVE, SHIELDING GASKET, ELECTRONIC,
ELASTOMER, EMI/RFI, HOLLOW P-STRIP
This specification is approved for use by all Departments
and Agencies of the Department of Defense.
The requirements for acquiring the relay described herein shall
consist of this specification sheet and the latest issue of MIL-DTL-83528.
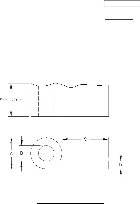
NOTE: Length shall be as specified on the purchase order.
FIGURE 1. EMI/RFI gasket, elastomer, and hollow P-strip.
AMSC N/A
FSC 5999
For Parts Inquires call Parts Hangar, Inc (727) 493-0744
© Copyright 2015 Integrated Publishing, Inc.
A Service Disabled Veteran Owned Small Business