
A-A-55485/4A
Inches
mm
.020
0.51
.022
0.56
.032
0.81
.040
1.02
.050
1.27
.070
1.78
.100
2.54
.190
4.83
.240
6.10
.250
6.35
.275
6.99
.400
10.16
.422
10.72
.440
11.18
.500
12.70
A-55485/04-007
Inches
mm
.002
0.05
.010
0.25
.022
0.56
.025
0.64
.032
0.81
.040
1.02
.050
1.27
.062
1.57
.070
1.78
.100
2.54
.190
4.83
.250
6.35
.400
10.16
.422
10.72
.440
11.18
.500
12.70
A-55485/04-008
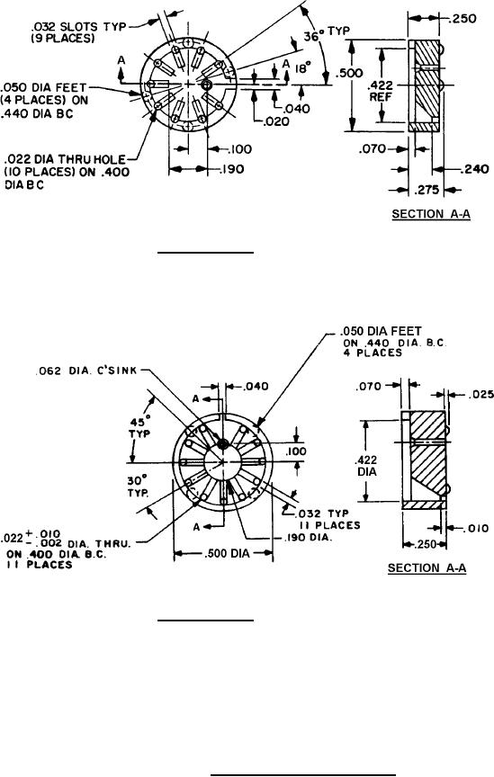
FIGURE 1. Configurations and dimensions - Continued.
6
For Parts Inquires call Parts Hangar, Inc (727) 493-0744
© Copyright 2015 Integrated Publishing, Inc.
A Service Disabled Veteran Owned Small Business